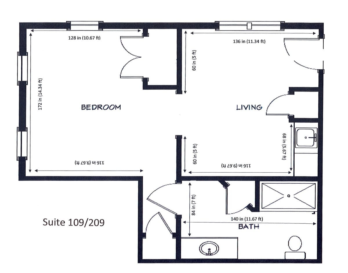
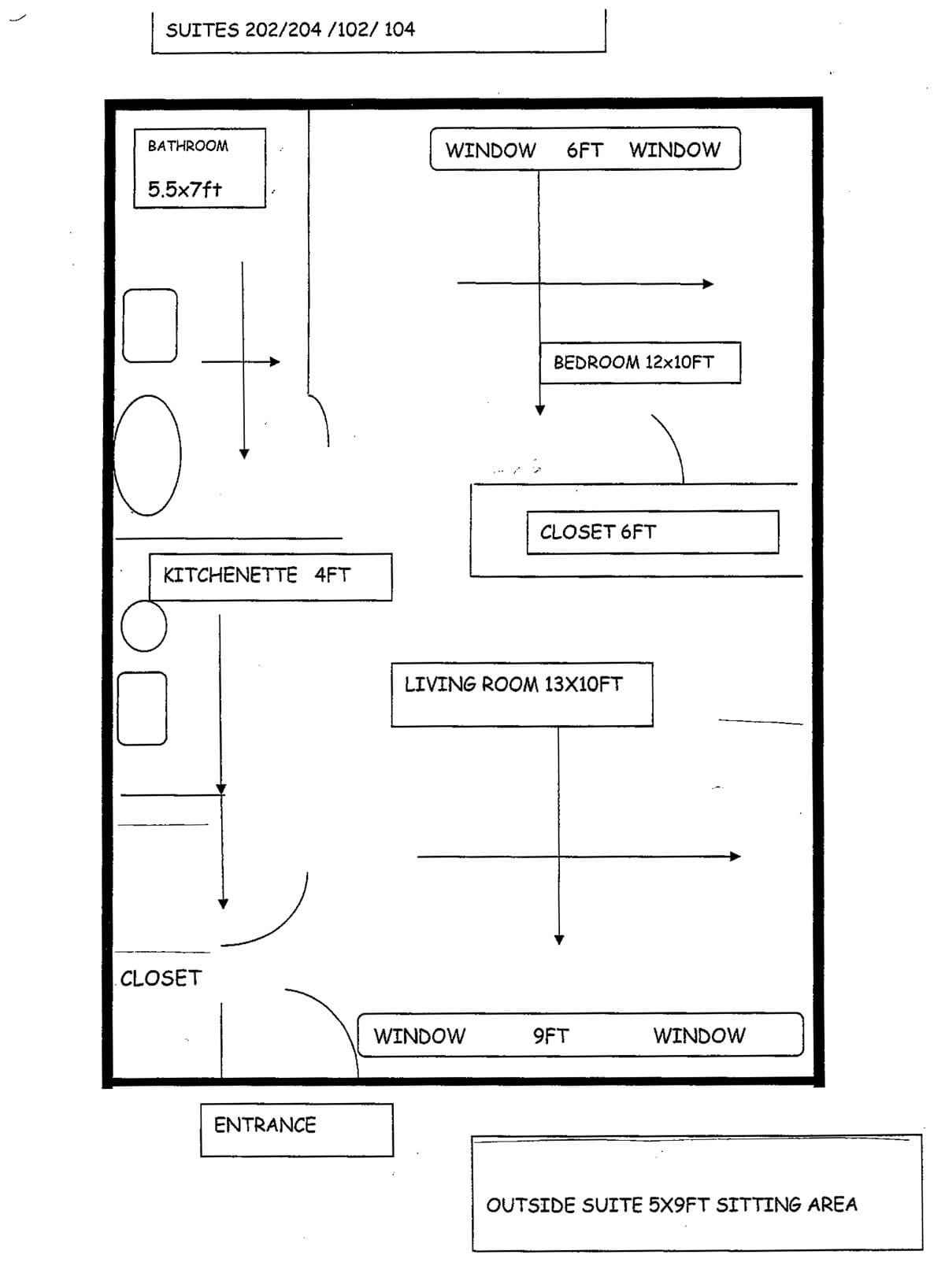
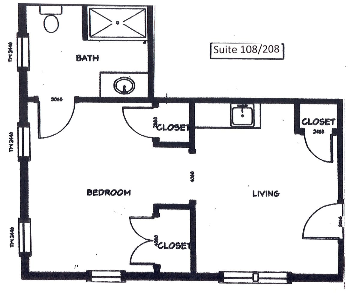
Floor Plans Tour Decatur House’s individual floor plans. Tour Decatur House online by viewing our photo gallery.